框架结构房屋造价多少钱一平方米(框架结构房主体造价50-60万)
现在国家提倡乡村振兴战略,所以农村建房是越来越规范,申请宅基地也越来越严格,很多新手在建房的时候,都不知道在自家的地上建房居然也要审批的,因为农村的土地是集体土地,所以宅基地建房肯定是要走流程的,不管是在原有老宅基地建房,还是在新的宅基地建房,都需要办理相关手续。所以你老家现在政策要是还宽松,手里还有闲钱,建议回老家建一栋房子,自住养老都可以。今天介绍一款四层欧式别墅

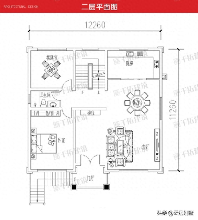
图纸编号:11 开间:12.26米 进深:11.26米 占地面积:150平方
建筑面积:541平方 结构:框架/砖混 主体造价:50-60万(根据实际物价决定)

架空一层:这一层主要是做车库为主,其他功能可以根据自己需要,后期隔,农村父母主要是干农活,种种菜,所以这一层还是很有必要的。
二层平面功能:朝南一间老人房,给父母住,阳光通透,距离客厅有一定距离,避免喧嚣,嘈杂。朝北有一间棋牌室,逢年过节的,可以在这打打牌,娱乐下消遣时间;客厅面积大,宽敞,阳光很充足,厨房餐厅一体设计,起居生活更便利。
三层平面布局功能:这一层居住为主,三间卧室,一个起居室,非常便利。
[比心]四层平面功能布局:两个卧室,还有一间可以自由布置功能,可以做书房或者储物间之类,还有一个观景大露台,露台设计好,可以在露台烧烤什么的,美滋滋……
本文链接:http://sywcj.cn/sh/1247.html
版权声明:本文内容由互联网用户自行发布,该文观点仅代表作者本人。本站仅提供信息存储空间服务,不拥有所有权,不承担相关法律责任。如发现本站有涉嫌抄袭侵权/违法违规的内容, 请联系qq:1442716096举报,一经查实,本站将立刻删除。
